House plans from 1,500 to 1,600 sq ft
Browse 28 ranch, duplex, and multi-story designs in this size range
House plans from 1,500 to 1,600 sq ft provide a comfortable middle ground — enough space for 3 bedrooms and a well-proportioned living area, without the higher build costs that come with larger homes.
Layout Overview
At this size, most plans include 3 bedrooms and 2 full bathrooms, with an open-concept kitchen, dining, and living area as the heart of the home. Master suites are typically separated from secondary bedrooms and include a walk-in closet and private bathroom. Kitchens in this range often feature a center island, pantry storage, and direct access to a covered patio or deck.
A Good Fit For
This size is one of the most popular for owner-occupied builds. It works for families with children, couples who want a guest room and home office, and retirees who want single-story living with enough room to host visitors. The plans are also practical for semi-rural and suburban lots where building too large would be unnecessary.
Common Plan Features
- 3 bedrooms with split or grouped layouts
- 2 full bathrooms including master en-suite
- Open kitchen with island and pantry
- Attached two-car garage
- Covered rear patio or screened porch
- Laundry room adjacent to bedrooms
Check if a plan fits your property with our Lot Analysis Tool. Need more room? Browse plans from 1,600 to 1,800 sq ft. Have questions about ordering or plan details? Get in touch. Browse the collection below and order your PDF blueprint from American Design Gallery — delivered within 1 business day.

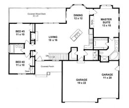
Floor Plan3 Bed | 2 Bath | 1,500 sq ft

Floor Plan3 Bed | 2 Bath | 1,504 sq ft

Floor Plan3 Bed | 2.5 Bath | 1,508 sq ft

Floor Plan2 Bed | 2 Bath | 1,515 sq ft

Floor Plan3 Bed | 2 Bath | 1,524 sq ft

Floor Plan3 Bed | 2 Bath | 1,525 sq ft

Floor Plan3 Bed | 2 Bath | 1,526 sq ft

Floor Plan3 Bed | 2.5 Bath | 1,527 sq ft

Floor Plan3 Bed | 2 Bath | 1,533 sq ft

Floor Plan3 Bed | 2.5 Bath | 1,539 sq ft

Floor Plan3 Bed | 2 Bath | 1,540 sq ft

Floor Plan3 Bed | 2 Bath | 1,541 sq ft

Floor Plan3 Bed | 2 Bath | 1,542 sq ft

Floor Plan3 Bed | 2 Bath | 1,550 sq ft

Floor Plan3 Bed | 2 Bath | 1,551 sq ft

Floor Plan3 Bed | 2.5 Bath | 1,552 sq ft

Floor Plan2 Bed | 2.5 Bath | 1,553 sq ft

Floor Plan3 Bed | 2 Bath | 1,554 sq ft

Floor Plan3 Bed | 2.5 Bath | 1,558 sq ft

Floor Plan2 Bed | 2 Bath | 1,565 sq ft

Floor Plan3 Bed | 2 Bath | 1,569 sq ft

Floor Plan3 Bed | 2.5 Bath | 1,580 sq ft

Floor Plan3 Bed | 2 Bath | 1,571 sq ft

Floor Plan3 Bed | 2 Bath | 1,585 sq ft

Floor Plan3 Bed | 2.5 Bath | 1,586 sq ft

Floor Plan3 Bed | 2 Bath | 1,587 sq ft

Floor Plan3 Bed | 2 Bath | 1,588 sq ft

Floor Plan3 Bed | 2 Bath | 1,594 sq ft
Frequently Asked Questions
Yes. Many plans in this range include an attached two-car garage. Garage square footage is typically not included in the listed living area total.
Open-concept layouts are the norm. The kitchen, dining area, and living room share one large space, which makes the home feel bigger and simplifies entertaining.
Plans are available with slab, crawlspace, or basement foundations depending on the design. Check each plan's details for available foundation options.
Select a plan, add it to your cart, and complete checkout. Your PDF blueprint is delivered within 1 business day from American Design Gallery.