3-Bedroom Ranch House Plan — 1,554 Sq Ft (Plan 1554)
by American Design Gallery|Rear 3 car garage

This 1,554 sq ft Ranch-style house plan offers an inviting layout perfect for modern living. With three bedrooms and two bathrooms, this single-story home is designed for comfort and convenience. The exterior showcases classic masonry accents on the front and left sides, paired with a welcoming covered porch that enhances its curb appeal. Inside, the open floor plan connects the living room, dining area, and kitchen seamlessly. The living room features vaulted ceilings and a cozy gas log fireplace, creating a perfect gathering space. The kitchen is equipped with a walk-in pantry, providing ample storage. The master suite includes a large walk-in closet and a private bathroom, while two additional bedrooms share a second bathroom. A covered deck at the rear offers an ideal spot for outdoor relaxation. Additionally, a full basement provides potential for future expansion, with options for a recreation room, two more bedrooms, and a full bath. This plan is ideal for families seeking a functional and stylish home.
Read full description →Features
- ●Vaulted Ceilings
- ●Plant Shelves
- ●Large Closet
- ●Covered Porch
- ●Covered Deck
- ●Walk-In Closet
- ●Fireplace
- ●Walk-In Pantry
Key Highlights
- ●1,554 sq ft Ranch-style home
- ●3 bedrooms, 2 bathrooms
- ●Vaulted ceilings and fireplace in living room
- ●Covered porch and rear deck
- ●Walk-in pantry in kitchen
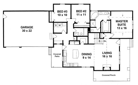
Floor Plan

Copyright 2026 ADG, Inc.
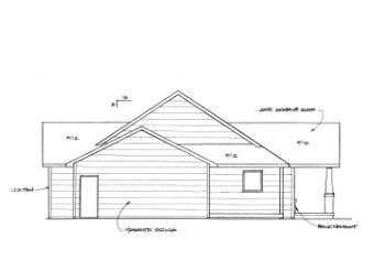
Elevation

Loading...
Will this plan fit your lot?
Enter your lot dimensions to see if Plan #1554 (42' × 78') fits
Try the Lot Analysis Tool →Have a question about this plan?
Ask about modifications, pricing, or anything else about Plan #1554
Send an Enquiry →Unlimited Licensing
- ✓Print as many copies as you need
- ✓Have changes made by your local draftsman
- ✓Share with your builder, engineer, and permitting office
- ✓Build the plan as many times as you want
- ✓One-time purchase, no recurring fees
Details
Heated Area
1554 sq ft
Roof
Truss 6/12 & 8/12 pitches
Floor
Truss or TJI
Walls
2x4
Ceilings
8' & vaulted
Basement
Full basement
Opt'l Finish
Rec room 2 bedrooms 1 full bath
Masonry
Front & left side only
Kitchen
Walk-in Pantry
Misc
Gas log fireplace
Similar Plans
- Plan #13573 bedroom Ranch w/ 3-Car Garage — 1357 sq ft
- Plan #13602 bedroom Cottage w/ Side Garage — 1360 sq ft
- Plan #13673 bedroom narrow lot Ranch w/ open floor plan — 1367 sq ft
About Plan #1554
Exterior and Curb Appeal
The Ranch-style house plan exudes classic charm with its thoughtfully designed exterior. The front elevation is adorned with masonry on the front and left sides, adding a touch of elegance and durability. This home’s welcoming covered porch invites you to enjoy the outdoors, providing a perfect spot for relaxation or casual gatherings. The roof design, featuring 6/12 and 8/12 pitches, complements the home’s traditional aesthetic, while ensuring effective water drainage.
Main Level Layout
As you step inside, you are greeted by an open and airy layout that maximizes the 1,554 square feet of living space. The main level is designed with both comfort and functionality in mind. The living room, dining area, and kitchen are seamlessly connected, creating a spacious environment for family activities and entertaining. Vaulted ceilings add a sense of grandeur to the living room, which also features a cozy gas log fireplace, perfect for chilly evenings. The dining area is strategically positioned adjacent to both the kitchen and living room, allowing for easy flow during meals and social events.
Bedroom and Bathroom Arrangement
This home includes three well-appointed bedrooms and two full bathrooms. The master suite is a private retreat, offering a generously sized bedroom, a large walk-in closet, and an en-suite bathroom equipped with modern amenities. The two additional bedrooms are located on the opposite side of the home, providing privacy and comfort for family members or guests. These bedrooms share a full bathroom that is conveniently situated in the hallway, ensuring accessibility and ease of use.
Notable Features
Several standout features add to the functionality and appeal of this house plan. The kitchen includes a spacious walk-in pantry, providing ample storage for groceries and kitchen essentials. Plant shelves throughout the home offer decorative display options, enhancing the interior’s aesthetic appeal. The covered deck at the rear of the house is a versatile space for outdoor dining or relaxation, seamlessly extending the living area to the outdoors. Additionally, the full basement offers significant potential for expansion, with optional finishes that include a recreation room, two additional bedrooms, and a full bath, making it ideal for growing families or those who desire extra living space.
Additional Considerations
The house plan features 2x4 exterior walls and is designed to accommodate truss or TJI flooring systems. These structural elements ensure durability and support, while the full basement provides added flexibility for future customization. The absence of a garage in this plan allows for a more compact footprint, ideal for narrower lots or those who prefer maximizing living space over vehicle storage. With its blend of traditional design and modern amenities, this Ranch-style home offers a perfect balance of comfort, style, and functionality.