3-Bedroom Ranch House Plan — 1,571 Sq Ft (Plan 1571)
by American Design Gallery|2 bedroom Ranch w/ hearth room, partial covered deck and 3 car garage

Plan 1571 is a thoughtfully designed Ranch-style home offering 1,571 square feet of living space on a single story. This home features three bedrooms and two bathrooms, making it ideal for families or individuals seeking a cozy yet spacious residence. The exterior of the home boasts a charming combination of brick and stone masonry, adding to its curb appeal. A welcoming covered porch sets the tone for relaxed outdoor living. Inside, the plan includes a living room with a fireplace, perfect for gatherings, and a dining room that ensures seamless flow during entertaining. The kitchen is well-appointed with ample cabinet space and a convenient pantry. The master suite offers a luxurious retreat with a walk-in closet and elegant coffered ceiling. High ceilings throughout the home enhance the sense of space and openness. Additional features include a bay window, hearth nook, and the potential for a finished basement with extra bedrooms and a recreational room, providing versatility for future expansions.
Read full description →Features
- ●Bay Window
- ●Covered Porch
- ●Walk-In Closet
- ●Fireplace
- ●9' Ceilings
- ●10' Ceilings
Key Highlights
- ●Single-story Ranch-style design
- ●3 bedrooms, 2 bathrooms
- ●1,571 sq ft of living space
- ●Covered porch with masonry accents
- ●Walk-in closet and fireplace
Floor Plan

Copyright 2026 ADG, Inc.
Elevation

Loading...
Will this plan fit your lot?
Enter your lot dimensions to see if Plan #1571 (67' × 48') fits
Try the Lot Analysis Tool →Have a question about this plan?
Ask about modifications, pricing, or anything else about Plan #1571
Send an Enquiry →Unlimited Licensing
- ✓Print as many copies as you need
- ✓Have changes made by your local draftsman
- ✓Share with your builder, engineer, and permitting office
- ✓Build the plan as many times as you want
- ✓One-time purchase, no recurring fees
Details
Heated Area
1571 sq. ft
Roof
Truss 6/12 main pitch 8/12 front pitch
Floor
Truss or TJI
Walls
9' & 10' plates L=218' (insulated)
Ceilings
10' - Living, Dining & Foyer 9' - Kitchen, Nook & Hearth Coffer - MBR
Basement
Approx. 1428 sq. ft View-out
Opt'l Finish
Rec room 2 Bedrooms Full Bath
Masonry
Approx. 198 sq. ft Brick 78 Stone 120 Front only (includes front offsets)
Kitchen
Approx. 13' x 10' Base cabs L=17' Upper cabs L=15' 18" Pantry
Misc
Csmt windows Gas-log Fireplace
Similar Plans
- Plan #13872 bedroom "open floor plan" Ranch w/ Walk-in Pantry and 3 car garage — 1387 sq ft
- Plan #1388 3 bedroom Ranch w/ Master Suite and stair landing exit — 1388 sq ft
- Plan #13922 bedroom Ranch with 3 Car Garage, big covered deck — 1392 sq ft
About Plan #1571
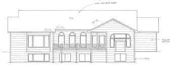
Exterior and Curb Appeal
The exterior of Plan 1571 captures the essence of a classic Ranch-style home with a touch of elegance. The façade features a harmonious blend of brick and stone masonry on the front, creating a welcoming and visually appealing entrance. A covered porch extends across the front, providing the perfect spot for outdoor relaxation and greeting guests. The roof design includes a combination of 6/12 and 8/12 pitches, adding both character and balance to the home’s overall silhouette. The use of masonry, approximately 198 square feet with 78 in brick and 120 in stone, gives the home a sturdy and refined appearance.
Main Level Layout
The main level of this home is designed with functionality and comfort in mind, spanning 1,571 square feet. The open-concept living area includes a spacious living room equipped with a gas-log fireplace, creating a cozy atmosphere for family gatherings. Adjacent to the living room is the dining area, which ensures a seamless flow for entertaining. The kitchen, measuring approximately 13' x 10', is well-equipped with a generous amount of cabinet space, including base cabinets measuring 17 feet and upper cabinets at 15 feet, alongside an 18-inch pantry for additional storage.
Bedroom and Bathroom Arrangement
Plan 1571 features three bedrooms, offering ample space for family members or guests. The master suite, measuring 13' x 17', serves as a luxurious retreat with a walk-in closet and an elegant coffered ceiling that adds a touch of sophistication. The two additional bedrooms are well-proportioned, each measuring 12' x 12', providing comfort and privacy. Two full bathrooms serve the home, ensuring convenience for daily routines and accommodating guests with ease.
Notable Features
This house plan is rich with features that enhance livability and comfort. High ceilings are a significant highlight, with 10-foot ceilings in the living, dining, and foyer areas, and 9-foot ceilings in the kitchen, nook, and hearth, creating an airy and spacious environment. The hearth area, adjacent to the kitchen, offers a cozy nook perfect for casual meals or relaxation. The plan also includes a basement with view-out capabilities, offering approximately 1,428 square feet of space, with options for finishing that include a recreational room, two additional bedrooms, and a full bath, providing versatility for future expansions or customization to suit individual needs.