3-Bedroom Ranch House Plan — 1,540 Sq Ft (Plan 1540)
by American Design Gallery|3 bedroom Ranch w/ 10' Ceilings, 3-Car Garage and wrap around covered deck

Plan 1540 is a thoughtfully designed Ranch-style home that offers a perfect blend of style and functionality. Spanning 1,540 square feet, this single-story layout includes three bedrooms and two bathrooms, ideal for family living. The open living area features 10-foot ceilings, enhancing the sense of space and light. A cozy fireplace in the living room sets a warm tone, while the adjacent dining area and well-equipped kitchen make entertaining a breeze. Key features include a covered porch and deck, perfect for enjoying the outdoors. The master suite offers a private retreat with a spacious walk-in closet and an en-suite bathroom, while two additional bedrooms share a second full bathroom. The basement with a view-out option provides potential for expansion, offering a recreation room and additional bedrooms. This home is designed with both practicality and comfort in mind, making it an excellent choice for those seeking a welcoming and versatile living space.
Read full description →Features
- ●Plant Shelves
- ●Bay Window
- ●Covered Porch
- ●Covered Deck
- ●Walk-In Closet
- ●Fireplace
- ●10' Ceilings
Key Highlights
- ●3 bedrooms, 2 bathrooms
- ●1,540 sq ft Ranch-style layout
- ●Open living area with fireplace
- ●Covered porch and deck
- ●Basement with expansion potential
Floor Plan

Copyright 2026 ADG, Inc.
Elevation

Loading...
Will this plan fit your lot?
Enter your lot dimensions to see if Plan #1540 (68' × 52') fits
Try the Lot Analysis Tool →Have a question about this plan?
Ask about modifications, pricing, or anything else about Plan #1540
Send an Enquiry →Unlimited Licensing
- ✓Print as many copies as you need
- ✓Have changes made by your local draftsman
- ✓Share with your builder, engineer, and permitting office
- ✓Build the plan as many times as you want
- ✓One-time purchase, no recurring fees
Details
Heated Area
1540 sq. ft
Roof
Truss 6/12 main pitch 8/12 front pitch
Floor
Truss or TJI
Walls
8' & 10' plates L=184' (insulated)
Ceilings
10'- Living, Dining, Kitchen, Bed #3 & Foyer
Basement
Approx. 1446 sq. ft View-out
Opt'l Finish
Rec room 2 Bedrooms Full Bath
Masonry
na
Kitchen
Approx. 13' x 12' Base cabs L=19' Upper cabs L=17' 24" Pantry
Misc
Csmt windows WB Fireplace
Similar Plans
- Plan #13403 bedroom Ranch w/ Jacuzzi tub and walk-in closet — 1340 sq ft
- Plan #13413 bedroom narrow lot Ranch w/ 3-Car Garage — 1341 sq ft
- Plan #13423 split-bedroom Ranch w/ corner fireplace — 1342 sq ft
About Plan #1540
Exterior and Curb Appeal
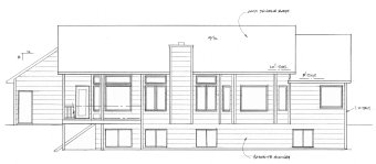
The exterior of Plan 1540 exudes classic Ranch-style charm with its combination of horizontal siding and brick accents. The front elevation is designed to be both welcoming and aesthetically pleasing, featuring a covered porch that invites relaxation. The gable roof, with its 6/12 main pitch, adds to the home's traditional appeal, while the rear covered deck offers a tranquil space for outdoor gatherings or simply enjoying the scenery.
Main Level Layout
The main level of Plan 1540 is designed to maximize space and functionality. The open floor plan seamlessly connects the living, dining, and kitchen areas, creating a harmonious flow ideal for both everyday living and entertaining. The living room, with its cozy fireplace, serves as the central gathering spot. High 10-foot ceilings in the main living areas enhance the feeling of openness and light, contributing to the home’s inviting atmosphere. The kitchen is thoughtfully designed with ample cabinetry, including a 24" pantry, making it both practical and stylish.
Bedroom and Bathroom Arrangement
The bedroom arrangement in this plan ensures both privacy and comfort. The master suite, measuring an expansive 14' x 16', is a private oasis featuring a large walk-in closet and a spacious en-suite bathroom. Two additional bedrooms, each measuring 11' x 11', are perfectly sized for family members or guests and share a well-appointed second full bathroom. This layout provides a sense of privacy while maintaining accessibility and convenience.
Notable Features
Plan 1540 is equipped with several features that enhance its overall appeal. Inside, plant shelves add a touch of architectural interest, while a bay window in the living area brings in abundant natural light. The basement, approximately 1,446 square feet with a view-out option, offers significant potential for expansion. It can be transformed into a recreation room, additional bedrooms, and a full bathroom, providing flexibility to suit various needs. The truss roof and floor systems ensure robust structural integrity and simplify the construction process.