3-Bedroom 2 Story House Plan — 1,580 Sq Ft (Plan 1570)
by American Design Gallery|2 story Farmhouse

This inviting two-story house plan, covering 1,580 square feet, is perfect for families seeking comfort and functionality. With three bedrooms and two and a half bathrooms, this home offers ample space for family living. The main level features an open-concept design with a cozy living room complete with a fireplace, and a well-appointed kitchen boasting a spacious walk-in pantry. Upstairs, the master suite impresses with vaulted ceilings and a large closet. Additional bedrooms provide flexibility for growing families or a home office. A full basement offers opportunities for further customization, including a recreation room and an exercise area. The exterior is equally charming, featuring a covered porch perfect for relaxation. This home is crafted to blend style and practicality seamlessly, making it an ideal choice for modern living.
Read full description →Features
- ●Vaulted Ceilings
- ●Large Closet
- ●Window Seat
- ●Covered Porch
- ●Fireplace
- ●9' Ceilings
- ●Walk-In Pantry
Key Highlights
- ●1,580 sq ft, two stories
- ●3 bedrooms, 2.5 bathrooms
- ●Vaulted ceilings in master suite
- ●Cozy living room with fireplace
- ●Spacious walk-in pantry
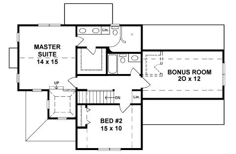
Floor Plans
First Floor

Second Floor

Copyright 2026 ADG, Inc.
Elevation

Loading...
Will this plan fit your lot?
Enter your lot dimensions to see if Plan #1570 (50' × 38') fits
Try the Lot Analysis Tool →Have a question about this plan?
Ask about modifications, pricing, or anything else about Plan #1570
Send an Enquiry →Unlimited Licensing
- ✓Print as many copies as you need
- ✓Have changes made by your local draftsman
- ✓Share with your builder, engineer, and permitting office
- ✓Build the plan as many times as you want
- ✓One-time purchase, no recurring fees
Details
Heated Area
1580 total 827 main floor 753 upper floor (240 bonus room)
Roof
Truss 8/12 main pitch 12/12 front pitch 3/12 porch pitch 16/12 tower pitch
Floor
Truss or TJI
Walls
2x4
Ceilings
9' main floor 8' upper floor Vaulted Master Suite
Basement
Full basement
Opt'l Finish
Rec room, storage/exercise room & 3/4 bath rough-in
Kitchen
9' x 13'
Misc
Hidden Walk-in pantry.
Similar Plans
- Plan #15523 bedroom 2-Story Farmhouse w/ optional 4-bedroom — 1552 sq ft
- Plan #16003 bedroom 2-Story w/ large covered deck, 3-Car Garage — 1600 sq ft
About Plan #1570
Exterior and Curb Appeal
The exterior of this 1,580 square foot home is designed to captivate with its classic architectural styling and inviting details. The covered porch not only enhances the curb appeal but also offers a charming spot for enjoying outdoor moments. The roofline is varied and interesting, featuring multiple pitches that add character to the home’s silhouette. The exterior, constructed with 2x4 walls, is both durable and aesthetically pleasing, making this home a standout in any neighborhood.
Main Level Layout
Upon entry, the main level welcomes you with 827 square feet of thoughtfully designed living space. The open-concept layout seamlessly connects the living and dining areas, creating a spacious environment perfect for family gatherings and entertaining. The living room is a focal point with its cozy fireplace, providing warmth and ambiance. Adjacent to this is the dining area, which flows easily into the kitchen. The kitchen is a culinary enthusiast's dream, featuring a 9' x 13' space and a hidden walk-in pantry that offers ample storage.
Bedroom and Bathroom Arrangement
The upper level, encompassing 753 square feet, is dedicated to rest and relaxation. The master suite is a luxurious retreat, featuring vaulted ceilings that create an atmosphere of spaciousness and elegance. A large closet provides plenty of storage, enhancing the suite’s functionality. Two additional bedrooms offer versatility, perfect for children, guests, or a home office. The bathrooms are modern and well-appointed, with the master suite including an en-suite bathroom for added privacy.
Notable Features
This home is designed with numerous features that enhance its livability and appeal. The full basement offers significant potential for customization, allowing homeowners to create a space tailored to their needs, whether it be a recreation room, exercise area, or additional storage. The design emphasizes both style and practicality, with details like the large window seat providing a cozy nook for relaxation. With 9' ceilings on the main floor, the home feels open and airy, further contributing to its inviting atmosphere.