Home
Contact
FAQ
Ordering
About Us
Archives
Plan Listing
under 1100
sq ft
1100 to 1200
1200 to 1300
1300 to 1400
1400 to 1500
1500 to 1600
1600 to 1800
1800 to 2000
over 2000
sq ft
Duplex Plans
House plans from 1800 to 2000 sq ft
>
Plan #1882
cart (0)
Plan #1882
Houzz
Print
Specifications
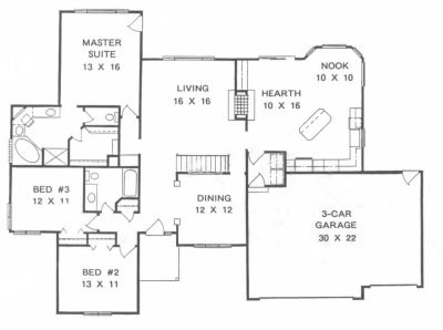
1882
sq ft
70′ wide
x
52′ deep
3 bedrooms
2 baths
Features
Bay Window
Covered Porch
Walk-In Closet
10' Ceilings
Floor Plan
Copyright 1997 ADG, Inc.
Elevation
Purchase this Plan
Format
(1) set "PDF" format - $920
(1) set of Vellum Reproducible - $1170
(5) sets of prints - $1170
Options
(Click to Expand)
*(not available with instant delivery)
Extra Prints
None
(1) Extra set of blueprints - $75.00
(2) Extra set of blueprints - $150.00
(3) Extra set of blueprints - $225.00
(4) Extra set of blueprints - $300.00
(5) Extra set of blueprints - $375.00
Foundation
Basement Foundation - $0
Slab Foundation - $300.00
Crawl Space Foundation - $300.00
Walls
2x6 Exterior walls - $100.00
Mirror Reverse Plan
Proper reading - $150.00
Rendering
Color Rendering (.tiff) - $100.00
Total:
$
Add to Cart
Modify this Plan
Click to Request a Quote
Similar Plans
No Similar Plans have been added
Details
Heated Area
Roof
Floor
Walls
Ceilings
Basement
(Opt'l Finish)
Masonry
Kitchen
Misc