House plans from 1,300 to 1,400 sq ft
Browse 26 ranch, duplex, and multi-story designs in this size range
House plans between 1,300 and 1,400 sq ft deliver solid 3-bedroom layouts with room for an attached garage and covered outdoor space. A practical size for families who want comfort without over-building.
Room Count and Layout
Plans in this range commonly offer 3 bedrooms and 2 full bathrooms. The main living area is typically open-concept — kitchen, dining, and family room share one continuous space — while bedrooms are grouped together or split for privacy. Many plans include an attached one- or two-car garage and a covered front porch or rear patio.
Who Builds This Size?
This category appeals to young families, first-time builders, and anyone looking for a right-sized home that avoids unnecessary square footage. The 1,300–1,400 sq ft range is also popular for rural and suburban builds where land is available but the goal is to keep the build budget reasonable.
Typical Features
- 3 bedrooms and 2 full baths
- Open kitchen with island or peninsula
- Attached single- or two-car garage
- Covered porch or patio
- Master suite with walk-in closet and private bath
- Laundry room or closet near bedrooms
Check if a plan fits your property with our Lot Analysis Tool. Need more space? Browse plans from 1,400 to 1,500 sq ft. Have questions? Contact us — we're happy to help. Order any plan from American Design Gallery and receive your PDF blueprint within 1 business day.

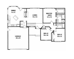
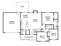
Floor Plan3 Bed | 2 Bath | 1,307 sq ft

Floor Plan2 Bed | 2 Bath | 1,309 sq ft

Floor Plan3 Bed | 2 Bath | 1,315 sq ft

Floor Plan3 Bed | 2 Bath | 1,318 sq ft

Floor Plan3 Bed | 2 Bath | 1,323 sq ft

Floor Plan3 Bed | 2 Bath | 1,324 sq ft

Floor Plan3 Bed | 2 Bath | 1,329 sq ft

Floor Plan2 Bed | 2 Bath | 1,333 sq ft

Floor Plan3 Bed | 2 Bath | 1,336 sq ft

Floor Plan3 Bed | 2 Bath | 1,338 sq ft

Floor Plan3 Bed | 2 Bath | 1,339 sq ft

Floor Plan3 Bed | 2 Bath | 1,340 sq ft

Floor Plan3 Bed | 2 Bath | 1,341 sq ft

Floor Plan3 Bed | 2 Bath | 1,342 sq ft

Floor Plan3 Bed | 2.5 Bath | 1,343 sq ft

Floor Plan3 Bed | 2 Bath | 1,344 sq ft

Floor Plan3 Bed | 2 Bath | 1,357 sq ft

Floor Plan2 Bed | 2 Bath | 1,360 sq ft

Floor Plan3 Bed | 2 Bath | 1,367 sq ft

Floor Plan3 Bed | 2 Bath | 1,370 sq ft

Floor Plan3 Bed | 2 Bath | 1,374 sq ft

Floor Plan2 Bed | 2 Bath | 1,384 sq ft

Floor Plan2 Bed | 2.5 Bath | 1,387 sq ft

Floor Plan3 Bed | 2 Bath | 1,388 sq ft

Floor Plan2 Bed | 2 Bath | 1,392 sq ft

Floor Plan3 Bed | 2 Bath | 1,396 sq ft
Frequently Asked Questions
Yes. With 3 bedrooms and an open living area, plans in this range accommodate a family of four comfortably. The key is the efficient layout — open-concept living maximizes usable space.
Many do. Attached single-car and two-car garages are common in this size range. The garage area is typically not included in the listed square footage.
You'll find ranch, traditional, and cottage styles. Most plans are single-story, which keeps the roofline simple and construction straightforward.
The PDF includes detailed floor plans and exterior elevations. Plans are delivered within 1 business day of purchase from American Design Gallery.