Duplex Plans
Browse 19 duplex house plan designs with PDF download in 1 business day
Duplex house plans place two complete living units under one roof, each with its own entrance, kitchen, and bedrooms. A practical multi-family floor plan for rental income, multi-generational living, or housing two households on a single lot.
How Duplex Floor Plans Work
A duplex is a single multi-family building divided into two separate units. Each unit has its own front door, kitchen, living area, bedrooms, and bathrooms — no shared interior space. The units can be side-by-side (sharing a common wall) or stacked (one above the other). From the outside, many duplex designs look like a single-family home.
Who Builds a Duplex?
Duplex plans serve three main audiences. Investors build them to generate rental income from both units. Families use them for multi-generational living — parents in one unit, adult children in the other — while maintaining separate households. Owner-occupants live in one side and rent the other to offset their mortgage.
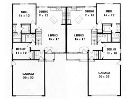
What to Expect in a Duplex Plan
- Two complete living units with private entrances
- 1–3 bedrooms per unit
- 1–2 bathrooms per unit
- Open-concept kitchen and living area in each unit
- Separate utility connections for independent metering
- Shared roof and foundation to reduce build cost per unit
A corner lot duplex is especially popular because it allows each unit to face a different street, giving both households a true front-door presence and added privacy.
Use our Lot Analysis Tool to check if a duplex plan fits your lot. Looking for single-family plans instead? Browse by size from under 1,100 sq ft to over 2,000 sq ft, or see all house plans. Contact us if you have questions about any plan. Browse the duplex plans below and order your PDF blueprint from American Design Gallery — delivered within 1 business day.

Floor Plan2 Bed | 1 Bath | 1,462 sq ft

Floor Plan1 Bed | 1 Bath | 1,776 sq ft

Floor Plan3 Bed | 2.5 Bath | 1,854 sq ft

Floor Plan2 Bed | 1 Bath | 1,860 sq ft

Floor Plan2 Bed | 1 Bath | 1,944 sq ft

Floor Plan2 Bed | 1 Bath | 1,967 sq ft

Floor Plan2 Bed | 2 Bath | 2,062 sq ft

Floor Plan2 Bed | 2 Bath | 2,078 sq ft

Floor Plan2 Bed | 1 Bath | 2,080 sq ft

Floor Plan4 Bed | 4 Bath | 2,176 sq ft

Floor Plan2 Bed | 2 Bath | 2,190 sq ft

Floor Plan2 Bed | 2 Bath | 2,190 sq ft

Floor Plan2 Bed | 2 Bath | 2,208 sq ft

Floor Plan2 Bed | 2 Bath | 2,211 sq ft

Floor Plan3 Bed | 2 Bath | 2,348 sq ft

Floor Plan3 Bed | 2 Bath | 2,486 sq ft

Floor Plan3 Bed | 2 Bath | 2,572 sq ft

Floor Plan2 Bed | 2.5 Bath | 2,616 sq ft

Floor Plan3 Bed | 2.5 Bath | 2,848 sq ft
Frequently Asked Questions
In a duplex, both units sit on a single lot under one roof and are owned by one party. In a twin home, each half is on its own lot with separate ownership. The building design can look identical.
Most duplex plans are designed to allow separate utility connections for each unit. This makes it straightforward to have tenants pay their own utility bills.
It depends on local zoning. Duplexes are allowed by right in many residential zones, but some areas restrict them. Check with your local planning department before purchasing a plan.
All plans from American Design Gallery are delivered as PDF blueprints within 1 business day of purchase.