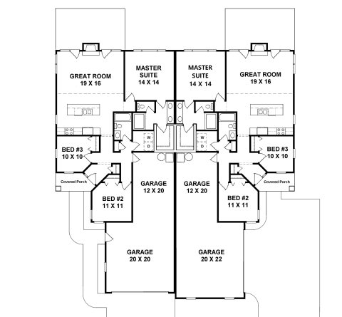
3-Bedroom Duplex House Plan — 2,572 Sq Ft (Plan 2572)
by American Design Gallery|3 bedroom duplex with 3 car garages

2,572Sq Ft
3Bedrooms
2Baths
1Stories
68'Width
73'Depth
Features
- ●Vaulted Ceilings
- ●Large Closet
- ●Covered Porch
- ●Walk-In Closet
- ●Fireplace
- ●9' Ceilings
Floor Plan

Copyright 2026 ADG, Inc.
Elevation

Loading...
Share
Will this plan fit your lot?
Enter your lot dimensions to see if Plan #2572 (68' × 73') fits
Try the Lot Analysis Tool →Have a question about this plan?
Ask about modifications, pricing, or anything else about Plan #2572
Send an Enquiry →Unlimited Licensing
- ✓Print as many copies as you need
- ✓Have changes made by your local draftsman
- ✓Share with your builder, engineer, and permitting office
- ✓Build the plan as many times as you want
- ✓One-time purchase, no recurring fees
Details
Heated Area
2572 sq ft 1286 each unit
Roof
Truss 6/12 pitch
Floor
Slab on grade
Walls
8' plates L=306' (insulated, including party wall)
Ceilings
Vaulted - Living, Dining, Kitchen & MBR
Basement
none
Opt'l Finish
N/A
Masonry
Approx. 285 sq. ft Front & offsets only
Kitchen
Approx. 13' x 8' Base cabs L=17' Upper cabs L=11' 9' open Bar
Misc
Safe Room MBR closet 60" x 42" tub/shower combo. 24" Pantry Cabinet Gas-log Fireplace
Similar Plans
- Plan #24863 bedroom duplex with safe room — 2486 sq ft
- Plan #26162-story duplex plan — 2616 sq ft