House plans from 1,800 to 2,000 sq ft
Browse 12 ranch, duplex, and multi-story designs in this size range
House plans from 1,800 to 2,000 sq ft deliver generous living space with 3 to 4 bedrooms, well-appointed kitchens, and room for the extras — walk-in pantries, mudrooms, and dedicated laundry areas.
Room Count and Sizing
Plans in this range commonly include 3 to 4 bedrooms and 2 to 3 full bathrooms. The master suite is typically the standout — expect a large walk-in closet, double vanity, and often a separate shower and tub. Secondary bedrooms are full-sized, with enough room for a queen bed and furniture.
Kitchen and Living Areas
Kitchens at this size are designed for daily cooking and entertaining. Most include a center island with bar seating, a walk-in pantry, and ample counter and cabinet space. The open-concept main living area connects kitchen, dining, and family room into a single flow, with many plans adding a separate formal dining room or breakfast nook.
Who Builds at This Size?
The 1,800–2,000 sq ft range is popular with families who want a home that covers all the basics without crossing into high-end build territory. It provides enough room for 2 to 3 children, a home office, and regular entertaining — while keeping the build timeline and budget realistic. A bi-level layout can also deliver this square footage efficiently on sloped lots.
Key Features
- 3–4 bedrooms with a spacious master suite
- 2–3 full bathrooms with double vanities
- Open kitchen with island, pantry, and bar seating
- Attached two-car garage with mudroom entry
- Covered patio or deck
- Dedicated laundry room
Use our Lot Analysis Tool to confirm a plan fits your lot. Want even more room? See plans over 2,000 sq ft. Have questions? Contact us or read our FAQ. Order from American Design Gallery and receive your PDF blueprint within 1 business day.

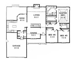
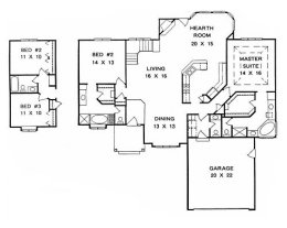
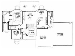
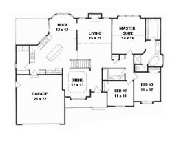
Floor Plan3 Bed | 2.5 Bath | 1,839 sq ft

Floor Plan3 Bed | 2.5 Bath | 1,840 sq ft

Floor Plan3 Bed | 2 Bath | 1,850 sq ft

Floor Plan2 Bed | 2.5 Bath | 1,852 sq ft

Floor Plan3 Bed | 2.5 Bath | 1,854 sq ft

Floor Plan2 Bed | 1 Bath | 1,860 sq ft

Floor Plan3 Bed | 2 Bath | 1,865 sq ft

Floor Plan2 Bed | 2.5 Bath | 1,874 sq ft

Floor Plan2 Bed | 2.5 Bath | 1,886 sq ft

Floor Plan2 Bed | 1 Bath | 1,944 sq ft

Floor Plan3 Bed | 2 Bath | 1,950 sq ft

Floor Plan2 Bed | 1 Bath | 1,967 sq ft
Frequently Asked Questions
It is close to the U.S. median for new single-family homes. It feels spacious for most families without the higher build and maintenance costs of a 2,500+ sq ft home.
Most plans in this range include an attached two-car garage. Some also offer a three-car option or an oversized two-car garage with workshop space.
Yes. Single-story ranch plans offer easy accessibility and no stairs, while two-story plans fit more square footage onto a smaller lot footprint.
Plans are delivered as a PDF blueprint within 1 business day of purchase from American Design Gallery. The files include floor plans and exterior elevations.