

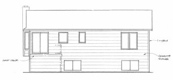
2 bedroom 2 bath Bi-level houseplan with vaulted ceilings. plant shelf and bay window dining. The master suite has a private bath with walk-in closet, linen closet and a double vanity.
No Similar Plans have been added
968 sq. ft
Truss
6/12 main pitch
8/12 front pitch
Truss or TJI
8' plates
L=142' (insulated)
Vaulted - Living,
Dining & Kitchen
Approx. 840 sq. ft
View-out (full)
Rec room
2 Bedrooms
Full Bath
Approx. 184 sq. ft
Front only (Includes front offsets)
Approx. 8' x 9'
Base cabs L=14'
Upper cabs L=18'
Csmt windows
W/B Fireplace