3-Bedroom Ranch House Plan — 1,620 Sq Ft (Plan 1620)
by American Design Gallery|3 bedroom Ranch w/ Hearth room, formal Dining and a 3-way Fireplace

This 1,620 sq ft Ranch-style house plan offers a comfortable and functional layout with three bedrooms and two bathrooms. The exterior features a charming facade with masonry accents, while inside, you'll find a spacious living area with 9-foot ceilings. The master suite includes a walk-in closet and coffered ceilings, and the living room is highlighted by a cozy fireplace. A covered porch and deck provide additional outdoor living space, perfect for relaxation and entertainment.
Read full description →Features
- ●Window Seat
- ●Bay Window
- ●Covered Porch
- ●Covered Deck
- ●Walk-In Closet
- ●Fireplace
- ●9' Ceilings
Key Highlights
- ●1,620 sq ft Ranch-style design
- ●3 bedrooms, 2 bathrooms
- ●Cozy gas-log fireplace
- ●Covered porch and deck
- ●Spacious master suite with walk-in closet
- ●9-foot ceilings throughout main areas
Floor Plan

Copyright 2026 ADG, Inc.
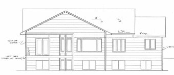
Elevation

Loading...
Will this plan fit your lot?
Enter your lot dimensions to see if Plan #1620 (52' × 58') fits
Try the Lot Analysis Tool →Have a question about this plan?
Ask about modifications, pricing, or anything else about Plan #1620
Send an Enquiry →Unlimited Licensing
- ✓Print as many copies as you need
- ✓Have changes made by your local draftsman
- ✓Share with your builder, engineer, and permitting office
- ✓Build the plan as many times as you want
- ✓One-time purchase, no recurring fees
Details
Heated Area
1620 sq. ft
Roof
Truss 6/12 main pitch 8/12 front pitch
Floor
Truss or TJI
Walls
8', 9' & 10' plates L=194' (insulated)
Ceilings
9' - Living Hearth, Kitchen & Nook 10' - Dining Coffer - MBR
Basement
Approx. 1490 sq. ft View-out
Opt'l Finish
Rec room 2 Bedrooms Full Bath
Masonry
Approx. 360 sq. ft Front only (includes front offsets)
Kitchen
Approx. 14' x 11' Base cabs L=21' Upper cabs L=18'
Misc
Csmt windows Gas-log Fireplace
Similar Plans
- Plan #14203 bedroom Ranch w/ Bay windows and tandem 3-Car Garage — 1420 sq ft
- Plan #1424 3 bedroom narrow lot Ranch w/ 3-Car Garage — 1424 sq ft
- Plan #14252 bedroom cottage w/ side load Garage & Shop — 1457 sq ft
About Plan #1620
Exterior and Curb Appeal
This Ranch-style home, with a width of 52 feet and a depth of 58 feet, presents a welcoming facade featuring approximately 360 square feet of masonry. The front elevation includes charming bay windows and a covered porch, inviting guests to enjoy the beautifully landscaped surroundings.
Main Level Layout
The main level spans 1,620 square feet, offering a seamless flow between rooms. The living area, measuring 14 by 18 feet, is enhanced by a gas-log fireplace, creating a warm and inviting atmosphere. Adjacent to the living room, the kitchen, approximately 14 by 11 feet, is equipped with ample cabinetry and workspace, including base cabinets extending 21 feet and upper cabinets 18 feet long.
Bedroom and Bathroom Arrangement
This single-story home includes three well-appointed bedrooms and two bathrooms. The master suite, sized 13 by 15 feet, features a coffered ceiling, adding elegance to the space. A spacious walk-in closet provides ample storage, while the en-suite bathroom ensures privacy and comfort. The additional bedrooms share a conveniently located bathroom, ensuring functionality for family and guests.
Notable Features
Among the standout features of this design are the 9-foot ceilings that enhance the sense of space throughout the living, hearth, kitchen, and nook areas. The optional basement finish offers potential for a recreation room, two additional bedrooms, and a full bath, expanding the home's versatility. Outdoor living is elevated with a covered wood deck, perfect for enjoying the outdoors in any weather.