3-Bedroom Ranch House Plan — 1,272 Sq Ft (Plan 1272)
by American Design Gallery|3 bedroom wide Ranch

Explore the inviting 1,272 square foot Ranch-style house plan, designed for simplicity and functionality. This single-story home offers three bedrooms and two bathrooms, making it ideal for families or couples seeking a comfortable living space. Notable features include a charming covered porch, bay window, and plant shelves, which add character and warmth to the home. The open layout seamlessly connects the living, dining, and kitchen areas, promoting easy interaction and flow. With a full basement ready for expansion, homeowners can customize additional living areas as needed. The absence of a garage allows for a larger interior space, emphasizing comfort and practicality. Enhanced by 9' ceilings, the home feels spacious and airy, providing a relaxing environment for everyday living.
Read full description →Features
- ●Plant Shelves
- ●Bay Window
- ●Covered Porch
- ●Walk-In Closet
- ●Fireplace
- ●9' Ceilings
Key Highlights
- ●3 bedrooms, 2 bathrooms
- ●1,272 sq ft Ranch-style home
- ●Full basement for expansion
- ●Charming bay window and plant shelves
- ●9' ceilings for spacious feel
Floor Plan

Copyright 2026 ADG, Inc.
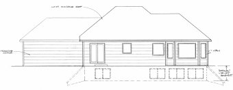
Elevation

Loading...
Will this plan fit your lot?
Enter your lot dimensions to see if Plan #1272 (62' × 35') fits
Try the Lot Analysis Tool →Have a question about this plan?
Ask about modifications, pricing, or anything else about Plan #1272
Send an Enquiry →Unlimited Licensing
- ✓Print as many copies as you need
- ✓Have changes made by your local draftsman
- ✓Share with your builder, engineer, and permitting office
- ✓Build the plan as many times as you want
- ✓One-time purchase, no recurring fees
Details
Heated Area
1272 sq. ft
Roof
Truss 8/12 pitch
Floor
Truss or TJI
Walls
8' & 9' plates L=156' (insulated)
Ceilings
9' - Living, Dining, Kitchen, MBR & Bed #3
Basement
Approx. 1168 sq. ft Full Basement
Opt'l Finish
Rec room 1 Bedroom Full Bath
Masonry
Approx. 395 sq. ft Front only (includes front offsets)
Kitchen
Approx. 9' x 10' Base cabs L=16' Upper cabs L=18' 18" Pantry
Misc
Csmt windows ("opt'l" Gas-log Fireplace shown on plans)
Similar Plans
- Plan #1075Ranch style very popular small house plan — 1075 sq ft
- Plan #1076Ranch style small house plan w/ large walk-in closet — 1076 sq ft
- Plan #1091Small house plan with Great room — 1091 sq ft
About Plan #1272
Exterior and Curb Appeal
Welcome to a charming Ranch-style home that offers both aesthetic appeal and practicality. The exterior is defined by its classic lines and a welcoming covered porch, perfect for enjoying a morning coffee or greeting guests. The masonry work on the front façade enhances the home’s durability and visual interest. A distinctive bay window adds architectural character, hinting at the comfort and style found within.
Main Level Layout
Spanning 1,272 square feet, the main level of this home is thoughtfully designed for efficiency and comfort. The living room features a cozy fireplace and measures 19' x 17', providing ample space for relaxation and gatherings. Adjacent to the living room, the dining area and kitchen are strategically positioned to facilitate easy movement and interaction. The kitchen, approximately 9' x 10', is well-equipped with extensive cabinetry, including an 18" pantry, catering to all your culinary and storage needs.
Bedroom and Bathroom Arrangement
This house plan includes three well-proportioned bedrooms, catering to a variety of household needs. The master suite, measuring 14' x 13', provides a personal haven with its walk-in closet and private bathroom. The additional two bedrooms, each approximately 10' x 10', are designed for comfort and accessibility, sharing a conveniently located bathroom. This arrangement ensures privacy and convenience for all family members.
Notable Features
A standout feature of this home is its 9' ceilings, which contribute to an open and airy atmosphere throughout the main living areas, including the living room, dining room, kitchen, master bedroom, and one of the additional bedrooms. The full basement offers significant potential for future expansion, with possibilities for a recreational room, additional bedroom, and full bath, allowing homeowners to tailor the space to their needs. Plant shelves throughout the home add a decorative touch, providing opportunities to personalize the space.
Additional Benefits
While this plan does not include a garage, the absence of one allows for a more expansive interior layout, maximizing the living space available. The home’s efficient design and thoughtful features make it an ideal choice for those seeking a balance of comfort, style, and functionality. Whether you are starting a family or looking for a cozy place to retire, this Ranch-style home provides a versatile and welcoming environment.